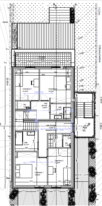
Le bureau Immexperts vous présente : Découvrez ce duplex alliant luminosité, confort et splendide vue panoramique sur la Meuse. Idéalement agencés, ses espaces se définissent comme suit :
RDC : Hall d'entrée, grand espace de vie avec cuisine équipée ouvrant sur une terrasse de 20 m² et un jardin privatif, buanderie, WC indépendant ;
1er étage : Hall de nuit, 2 chambres spacieuses donnant sur une terrasse de 11 m², une salle de douche, 1 WC.
Aux extérieurs : Un garage et un emplacement de parking.
Au niveau technique : Excellente performance énergétique (pompe à chaleur, chauffage sol, 12 panneaux photovoltaïques, châssis DV). PEB projeté A, électricité conforme.
Ses atouts : 31 m² de terrasse et un jardin donnant sur le halage, le tout orienté Sud. Petite copropriété de 2 appartements sise dans une rue à faible passage, à 5mn d'Andenne.
Prix : 295.000€ + 27.000 € pour le garage et l'emplacement de parking (Vente sous régime TVA 21%). Livraison en février/mars 2026.
Informations et visites au 085/84.41.91 - bureau@immexperts.be -
www.immexperts.be.