Visite virtuelle
!!!Option!!!Maison avec commerce en rez de chaussée
À partir de € 260.000
Option
2
1
163 m²
1550 m²
1
!!!Option!!!Le bureau Immexperts vous présente : Dans la magnifique vallée du Samson, cette bâtisse de caractère du 19ème siècle accueille un rez de chaussée commercial et un bel appartement à l'étage qui sont décrits comme suit :
Sous-sol : Cave ;
Rez de chaussée : Vaste séjour/salle de réception de plus de 50 m², 2 WC clientèle, cuisine, arrière-cuisine de 16 m² avec chambre froide, cellier, garage ;
1er étage : Hall, séjour, 2 chambres (21 et 16m²), salle de bain;
2ème étage : Grenier aménageable.
Aux extérieurs : Terrasse récente de 70m², jardin en palier.
Au niveau technique : Chauffage central mazout. PEB F (20250404018028 - 436kWh/an.m² - 56048kWh/an). Electricité conforme.
Situation : Zone touristique attractive - Renouveau gastronomique dans le secteur ( Restaurants, Fromagerie, Caviste,..)- Au coeur d'un site préservé - A 15mn de Namur et d'Andenne.
Faire offre à partir de 260.000 euros (sous réserve de l'acceptation du propriétaire) Informations et visites : bureau@immexperts.be - 085/84 41 91
Informations générales
AdresseRue de Gramptinne 71, 5300 Thon
Nombre de chambres2
Nombre de salles de bain1
Nombre de toilettes3
Nombre de garages1
Nombre de places de parking externes3
Surface habitable163 m²
Surface du living28 m²
Surface du terrain1550 m²
DisponibilitéObligation locative à respecter
Orientation facade arrièreNord
Performance énergétique
Label PEB
Valeur PEB436 kWh/m²/an
PEB total56048 kWh/an
Certificat d'électricitéOui, conforme RGIE
Référence PEB20250404018028
Financier
PrixÀ partir de € 260.000
Revenu cadastral€ 1.145
Droits d'enregistrement (3%)€ 7.800
Droits d'enregistrement (12.5%)€ 32.500
Coûts totaux€ 10.770,37
Total€ 270.770,37
Confort
ChauffageC.C. au mazout
CuisineNon-équipéeChambre froide comprise dans la vente.
VitrageSimple
Châssisbois
ExtérieurTerrasse
DestinationCommerce + logement
StyleMaison de caractère
Construction
Construction4 façades
Type de constructionPierre de taille
Année de construction1875
ÉtatA rafraîchir
ToitToit français
Matériau de toitureTuiles
Attestation de solPrésent
Informations urbanistiques
Droit de préemptionNon
PermisPas applicable
CitationPas applicable
Permis de lotissementPas applicable
AffectationZone verte
Zone à risque d'inondationNon
Zone inondable délimitéeNon
Zone rivièreNon
Agencement
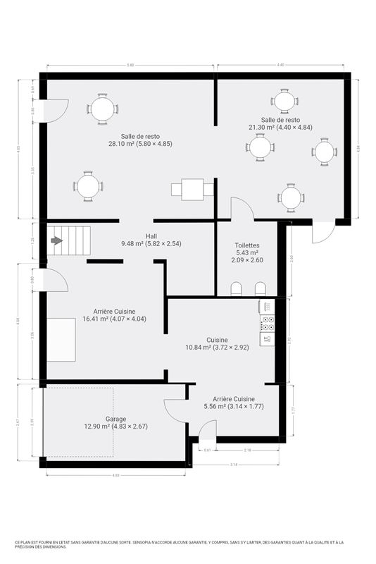
Rez-de-chaussée
Espace commercial52.1 m²
Cuisine10.8 m²
Cuisine16.2 m²
Cellier6.6 m²
WC5.4 m²
2 wcGarage12.9 m²
Premier étage
Hall de nuit
Séjour28.1 m²
Chambre à coucher 121.8 m²
Chambre à coucher 216.2 m²
Salle de bain6.3 m²
Deuxième étage
Grenier de rangement30.7 m²
Cave(-1)
Cave





















