Visite virtuelle
!!!!Option!!Gros oeuvre fermé dans une rue calme de Ben-Ahin
€ 204.000
Vendu
3
1
150 m²
500 m²
1
!!!!Option!!!!Le bureau IMMEXPERTS vous présente,
Idéalement située, entre Andenne et Huy (Ben-Ahin), maison en gros oeuvre fermé qui ne demande qu'à être parachevée.
établi sur une parcelle de +- 5 ares, le bâtiment contient +- 110 m² habitables en plus du garage et d'une remise. En voici la description :
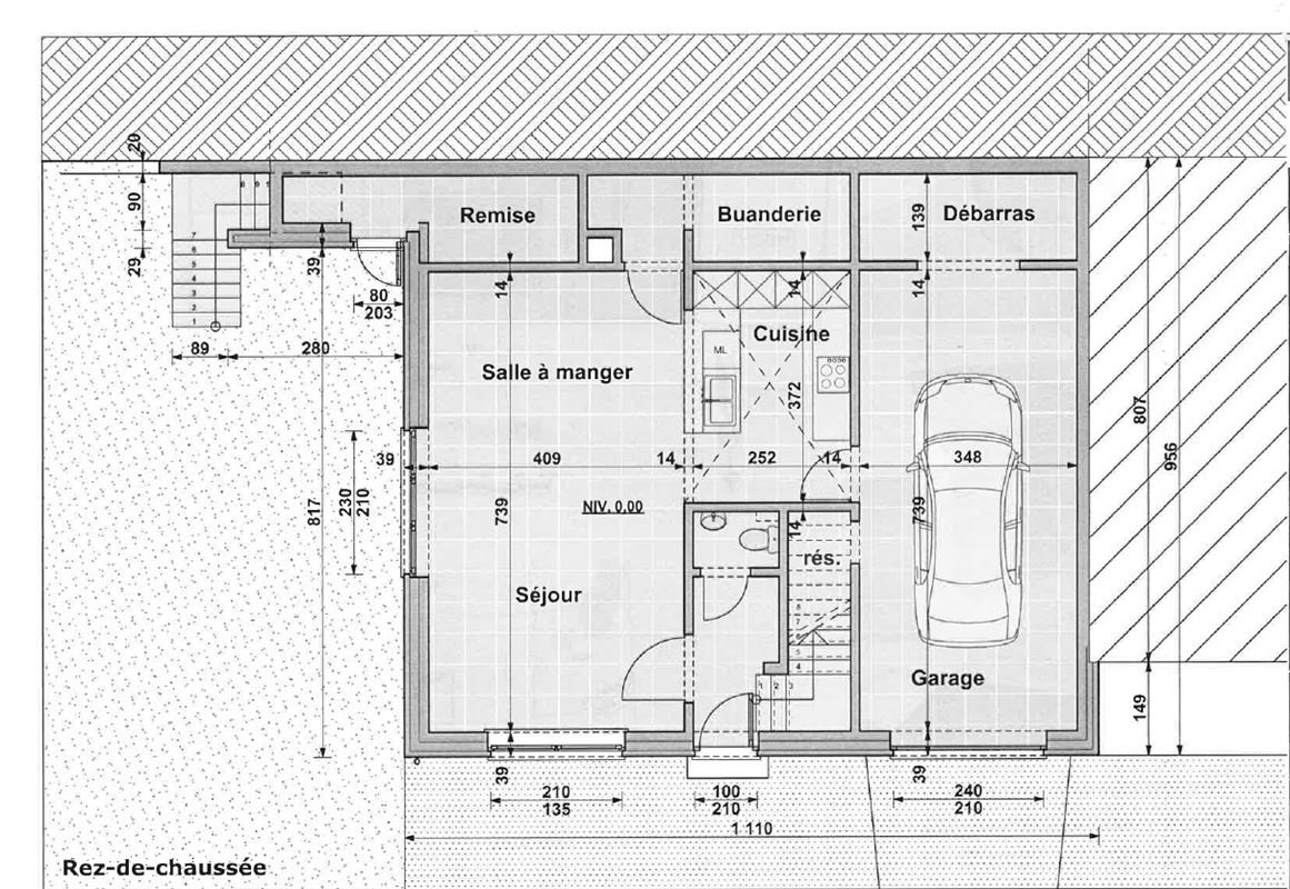
- RDC : hall d'entrée, local WC à finaliser, séjour, cuisine (non placé mais vendue avec la maison) ; buanderie et garage
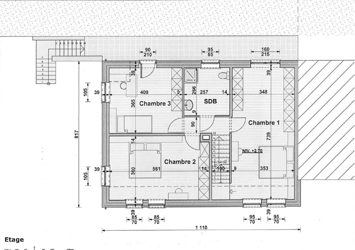
- 1 er : hall de nuit, SDB à finaliser et 3 chambres spacieuses avec un accès à une terrasse.
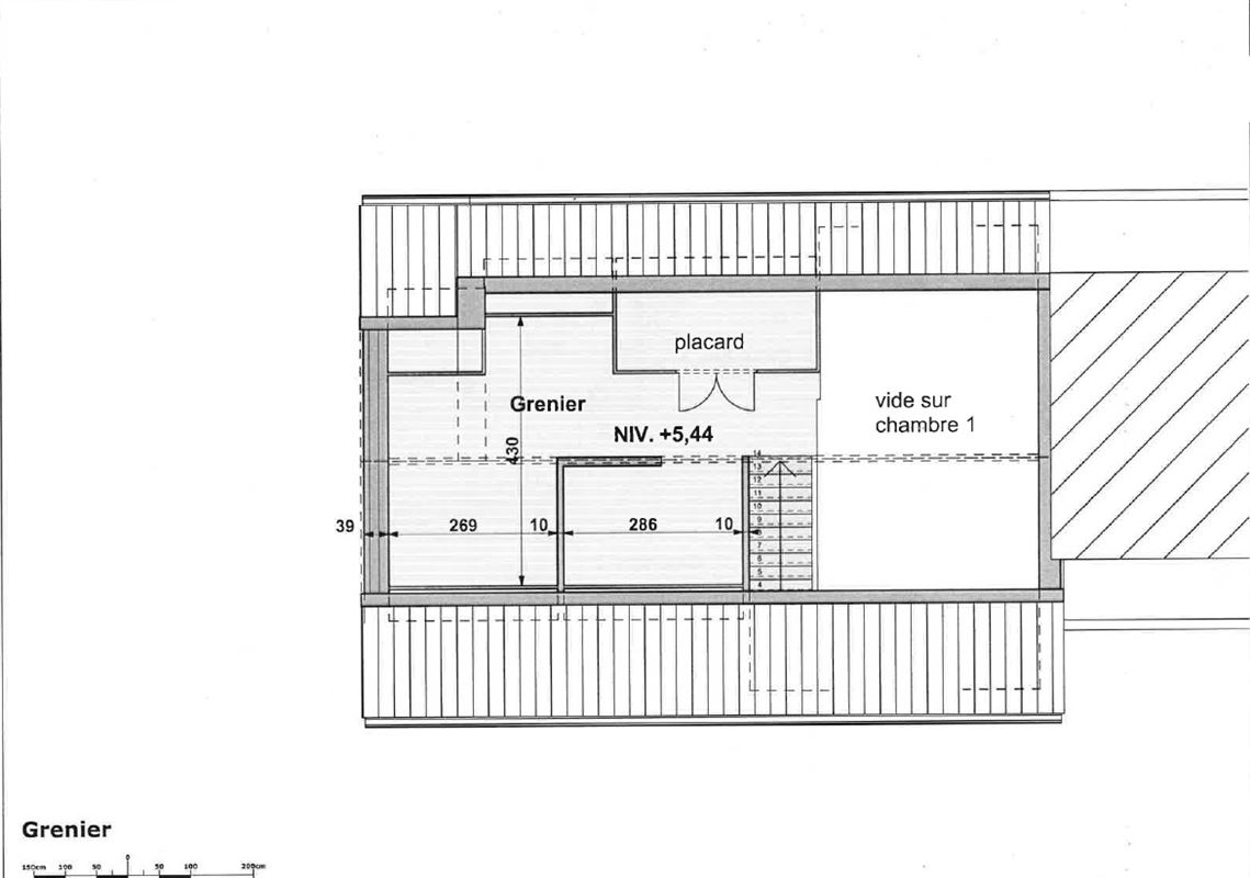
- 2ème : grenier de rangement ou petit bureau.
Nombreux atouts : 2 extérieurs ; volumes de construction ; espaces de rangement ; cassette à bois ; rue à faible passage ; quartier calme.
PEB projeté : RWPEB-069805 - vente sous régime des droits d'enregistrement - disponible à l'acte
PRIX : 204.000 euros (sous réserve de l'acceptation par le propriétaire).
Informations et visites : bureau@immexperts.be - 0467.81.65.23
Informations générales
AdresseDerrière Saive 1, 4500 Ben-Ahin
EnvironnementCalme
Nombre d'étages2
Nombre de chambres3
Nombre de salles de bain1
Nombre de toilettes2
Nombre de garages1
Surface habitable150 m²
Surface du living30 m²
Surface du terrain500 m²
Largeur de façade11 m
Largeur du terrain15 m
DisponibilitéA l'acte
Orientation facade arrièreSud
Performance énergétique
Référence PEBRWPEB-069805
Financier
Prix€ 204.000
Coûts de construction€ -21.000
Coûts totaux€ 2.645,62
Total€ 206.645,62
Confort
ChauffageBois
CuisineEntièrement équipéenon montée mais stockée dans le garage
VitrageDouble
Châssispvc
IntérieurGrenier, Buanderie, Comble
ExtérieurTerrasse, Jardin
DestinationHabitation
StyleModerne
Construction
Construction3 façades
Type de constructionTraditionnel
Année de construction2023
ÉtatTravaux à prévoir
ToitToit en mansarde
Matériau de toitureTuiles
État du toitEn parfait état
Attestation de solPrésent
Informations urbanistiques
Droit de préemptionPas encore demandé(e)
PermisPas encore demandé(e)
CitationPas encore demandé(e)
Permis de lotissementPas encore demandé(e)
AffectationPas encore demandée
Sensibilité aux inondationssitué dans une zone potentiellement inondable et dans une zone inondable délimitée et dans une zone riveraine délimitée
Zone à risque d'inondationOui
Zone inondable délimitéeOui
Zone rivièreOui
Agencement
Rez-de-chaussée
Hall d'entrée4.0 m²
Séjour30.2 m²
Cuisine équipée9.4 m²
Buanderie3.5 m²
Débarras3.5 m²
WC1.5 m²
Garage25.7 m²
+ débarrasPremier étage
Hall de nuit2.3 m²
Chambre à coucher 125.7 m²
Chambre à coucher 220.2 m²
Chambre à coucher 314.9 m²
Salle de bain6.8 m²
Deuxième étage
Grenier23.9 m²
Avec placard























