Visite virtuelle
!!Option!!Splendide maison 4 façades à Stud
À partir de € 475.000
Vendu
4
1
1
214 m²
2266 m²
1
!!Option!!Retour sur le marché de ce superbe bien suite à une non-levée de condition suspensive : Votre agence immobilière, IMMEXPERTS, vous présente : Cette magnifique longère aux volumes surprenants et avec piscine, bénéficie d'une vue imprenable et relaxante sur les campagnes environnantes. Découvrez ici son descriptif :
Sous-sol : Petite cave ;
RDC : Hall, salon, salle à manger, cuisine, véranda, cuisine d'été, salle de douche, 2 WC, garage avec porte sectionnelle ;
1er étage : Hall, 4 chambres, salle de bain, buanderie ;
2ème étage : Grenier de rangement ;
Côté technique : Châssis bois DV, CC mazout ( chaudière récente), poêle à bois, citerne d'eau de pluie de 5000litres, système d'alarme, PEB E (20241002014025 - 85052 kWh/an - 342 kWh/an.m²).
Aux extérieurs : Parcelle à bâtir de +/- 9 ares comprise dans la vente, jardin magnifiquement entretenu avec nombreux atouts : piscine, pièces d'eau, atelier, serre, boulodrome, citerne à eau de pluie (10.000L), terrasse ombragée avec barbecue. Golf d'Andenne à 50 mètres.
Prix : Faire offre à partir de 475.000 € (sous réserve de l'acceptation par le propriétaire)
Informations et visites : 085/84.41.91 - www.immexperts.be - bureau@immexperts.be
Informations générales
AdresseRue Stud 50, 5300 Andenne
Nombre d'étages1
Nombre de chambres4
Nombre de salles de bain1
Nombre de salles de douche1
Nombre de toilettes3
Nombre de garages1
Nombre de places de parking externes3
Surface habitable214 m²
Surface du living28 m²
Surface du terrain2266 m²
DisponibilitéA l'acte
Orientation facade arrièreSud
Performance énergétique
Label PEB
Valeur PEB342 kWh/m²/an
PEB total85052 kWh/an
Certificat d'électricitéNon
Référence PEB20241002014025
Financier
PrixÀ partir de € 475.000
Revenu cadastral€ 884
Droits d'enregistrement (3%)€ 14.250
Droits d'enregistrement (12.5%)€ 59.375
Coûts totaux€ 17.368,65
Total€ 492.368,65
Confort
ChauffageC.C. au mazoutChaudière de 2020
Cuisinehyper-équipée
VitrageDouble
Châssisbois
IntérieurFeu ouvert, Alarme
ExtérieurPiscine, Etang, Barbecue, Veranda, Châlet de jardin, Atelier, Terrasse, Jardin
DestinationHabitation
Construction
Construction4 façades
Type de constructionPierre
Année de construction1850
ÉtatBon état
ToitToit pointu
Matériau de toitureEternit ondulée
Attestation de solPrésent
Informations urbanistiques
Droit de préemptionNon
PermisOui
CitationPas applicable
Permis de lotissementOui
AffectationZone rurale résidentielle
Zone à risque d'inondationNon
Zone inondable délimitéeNon
Zone rivièreNon
Agencement
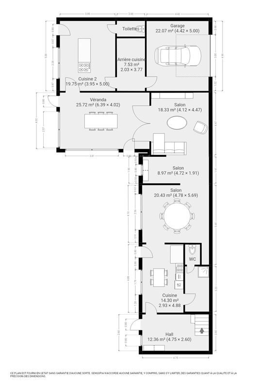
Rez-de-chaussée
Cuisine équipée14.3 m²
Salle de douche8.9 m²
avec WCSalle à manger26.6 m²
Séjour28.4 m²
Veranda25.8 m²
Cuisine19.8 m²
Cuisine d'étéCellier7.6 m²
WC2.2 m²
Garage22.1 m²
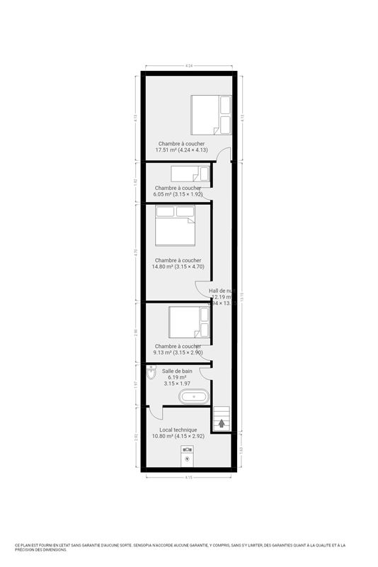
Premier étage
Hall de nuit12.2 m²
Chambre à coucher 117.5 m²
Chambre à coucher 214.8 m²
Chambre à coucher 39.1 m²
Chambre à coucher 49.1 m²
Salle de bain6.2 m²
Chaufferie12.1 m²










































