Visite virtuelle
!!!OPTION!!!Coquette maison dans le centre d'Hingeon
À partir de € 175.000
Option
3
1
133 m²
1242 m²
1
!!!OPTION!!!Le bureau Immexperts vous présente :
Idéalement située dans le centre d'Hingeon (Fernelmont), maison villageoise érigée sur une parcelle d'approximativement 12 ares.
En plus d'un garage indépendant, et de remises extérieures, elle se compose comme suit :
- rdc : hall d'entrée, séjour, salle à manger, cuisine, buanderie, wc, sdd et rangements.
- 1er : hall de nuit et 3 chambres.
On y retrouve également des combles de rangements et un beau jardin clôturé et soigné, en plus d'une orientation plein Sud.
D'un point de vue technique : châssis Aluminium double vitrage ; 3 poêles à mazout ; électricité conforme ; toiture en tuiles.
Atouts : située à 2 min de la E42 ; 15 mn de Namur et Andenne et profitant des premières facilités (commerces, écoles, transports en commun, etc).
PEB : G : 638 Kwh/m².an - 108.807kwh.an - réf : 20251007008387.
Prix : faire offre à partir de 175.000 € (sous réserve d'acceptation par le propriétaire).
Informations et visites : bureau@immexperts.be - 085.84.41.91 - www.immexperts.be
Informations générales
AdresseGrand Route 35, 5380 Hingeon
EnvironnementCommerçant
Nombre d'étages1
Nombre de chambres3
Nombre de salles de douche1
Nombre de toilettes1
Nombre de garages1
Surface habitable133 m²
Surface du terrain1242 m²
Largeur de façade10 m
Largeur du terrain17 m
DisponibilitéA l'acte
Orientation facade arrièreSud-est
Performance énergétique
Label PEB
Valeur PEB638 kWh/m²/an
PEB total108807 kWh/an
Certificat d'électricitéOui, conforme RGIE
Référence PEB20251007008387
Émissions de CO2158 kg/m²/an
Inspection du réservoir de mazout-
Financier
PrixÀ partir de € 175.000
Frais divers€ 3.000
Revenu cadastral€ 429
Droits d'enregistrement (3%)€ 5.250
Droits d'enregistrement (12.5%)€ 21.875
Coûts totaux€ 10.695,60
Total€ 185.695,60
Confort
ChauffagePoêle à mazout3 poêles individuels
CuisinePas présent
VitrageDouble
Châssisalu
IntérieurFeu ouvert, Grenier, Buanderie, Comble
ExtérieurChâlet de jardin, Terrasse, Jardin
DestinationHabitation
StyleStyle 1960
Construction
Construction3 façades
Type de constructionTraditionnel
Année de construction1950
Année de rénovation1990
ÉtatTravaux à prévoir
ToitToit français
Matériau de toitureTuiles
État du toitBon état
Informations urbanistiques
Droit de préemptionPas encore demandé(e)
PermisPas encore demandé(e)
CitationPas encore demandé(e)
Permis de lotissementPas encore demandé(e)
AffectationPas encore demandée
Zone à risque d'inondationNon
Zone inondable délimitéeNon
Zone rivièreNon
Agencement
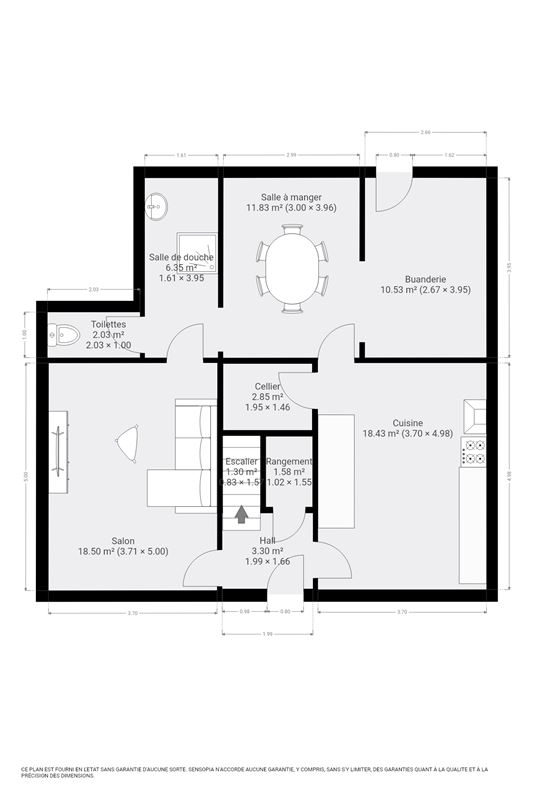
Premier étage
Hall de nuit9.8 m²
Chambre à coucher 114.7 m²
Chambre à coucher 215.0 m²
18.4 m²
Étage -1
Hall d'entrée3.3 m²
Cuisine semi-équipée18.4 m²
Living18.5 m²
Salle à manger11.8 m²
Toilette 12.0 m²
Salle de douche6.3 m²
Buanderie10.5 m²
Débarras4.0 m²





















