!!Option!!Lumineux appartement
€ 650 / mois+ € 85 frais
Option
1
1
51.4 m²
!!Option!!Le bureau IMMEXPERTS vous présente: Au premier étage d'un petit immeuble situé en plein centre ville, cet appartement lumineux composé comme suit : hall d'entrée, cuisine hyper équipée, séjour, WC individuel, une chambre, salle de bain. Équipements de standing - situation idéale: A proximité de toutes facilités (arrêts de bus, gare, magasins,E42,...). PEB B - 135 kWh/m².an - 8 694 kWh/an - réf : 20230228022717. Libre le 01/12/2025. Loyer: 650€/mois + 85 €/mois charges communes (charges communes, entretien chaudière, assurance abandon de recours, provision en eau). Informations et visites au 085/84.41.91 - bureau@immexperts.be - www.immexperts.be.
Informations générales
AdresseRue Croisée voie 61 / 1, 5300 Andenne
Étage1
Nombre d'étages2
Nombre de chambres1
Nombre de salles de bain1
Nombre de toilettes1
Surface habitable51.4 m²
Surface du living23.75 m²
Disponibilité1/12/2025
Orientation facade arrièreSud-est
Performance énergétique
Label PEB
Valeur PEB135 kWh/m²/an
PEB total8694 kWh/an
Référence PEB 20230228022717
Financier
Prix€ 650 / mois
Charges locatives€ 85Les charges comprennent : € 15 Provision, € 35 Commun, € 17 Divers, € 15 Eau froide, € 17 Assurance de recours, € 18 Entretien chaudière
Garantie€ 1.300
Confort
ChauffageC.C. au gaz
Cuisine hyper-équipée
VitrageDouble
Châssispvc
Intérieurparlophone
DestinationHabitation
StyleClassique
Construction
Construction2 façades
Type de constructionTraditionnel
ÉtatBon état
ToitToit français
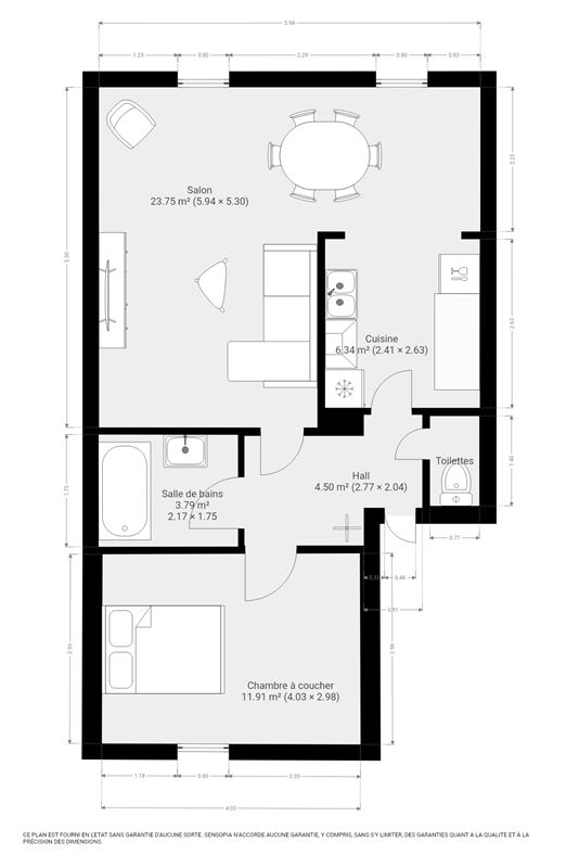
Agencement
Hall d'entrée4.5 m²
Toilette 11.1 m²
Chambre à coucher 111.9 m²
Salle de bains 13.8 m²
Living23.8 m²
Cuisine super-équipée6.3 m²












