!OPTION! Appartement de standing en bord de Meuse
€ 1.000 / mois+ € 115 frais
Option
3
2
111 m²
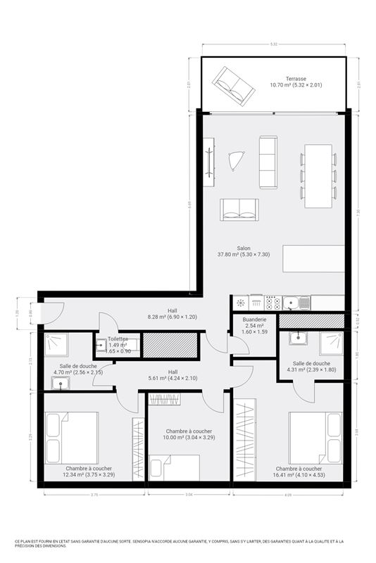
!OPTION!Le bureau IMMEXPERTS a le plaisir de vous présenter : A proximité du centre-ville d'Andenne, dans la résidence "DIAMANT 2" , spacieux appartement de ± 111 m² se composant comme suit : Au sous-sol : cave de ± 5m² ; Au 1er étage : hall d'entrée, séjour avec coin cuisine hyper-équipée, WC individuel, hall de nuit, 3 chambres (16m², 12m², 10m²), 2 salles de douches, buanderie / local technique ; Aux abords extérieurs : terrasse de ± 10,5 m². Nombreux atouts : Quartier calme en bord de Meuse, proches des facilités (arrêts de bus, gare, E42, magasins, ...). PEB : A : 73 kWh/m².an (référence : 20180801006990) - Libre au 01/12/2025. Loyer : 1.000 €/mois - Charges : 115€/mois (entretien des communs, assurance abandon de recours et entretien chaudière). Informations et visites : 085/84.41.91 - bureau@immexperts.be - www.immexperts.be
Informations générales
AdresseRue Wilgot 5/A / 103, 5300 Andenne
EnvironnementCentre commercial
Étage1
Nombre d'étages4
Nombre de chambres3
Nombre de salles de douche2
Nombre de toilettes1
Nombre de places de parking externes2
Surface habitable111 m²
Surface du living30 m²
Disponibilité1/12/2025
Performance énergétique
Label PEB
Valeur PEB73 kWh/m²/an
PEB total8927 kWh/an
Référence PEB20180801006990
Financier
Prix€ 1.000 / mois
Charges locatives€ 115 parties communes (entretien intérieur et extérieur, éclairage et chauffage) Les charges comprennent : € 90 Commun, € 10 Divers, € 10 Assurance de recours, € 15 Entretien chaudière
Garantie€ 2.000
Confort
ChauffageC.C. au gaz
Cuisine hyper-équipée
VitrageDouble
Châssispvc
IntérieurVidéophone, Buanderie
ExtérieurTerrasse
DestinationHabitation
Construction
Type de constructionAutres
Année de construction2018
ÉtatNouvelle construction
ToitToit français
Matériau de toitureTuiles
État du toitParfait
Agencement
Hall d'entrée8.3 m²
Séjour + cuisine 37.8 m²
WC1.5 m²
Hall de nuit5.6 m²
Buanderie2.5 m²
Chambre à coucher 110.0 m²
Chambre à coucher 212.3 m²
Salle de douche4.7 m²
Chambre à coucher 316.4 m²
Salle de douche4.3 m²
Terrasse10.1 m²


















