Visite virtuelle
!!!Vendu!!Appartement neuf à 2 pas du centre ville
À partir de € 219.500
Vendu
2
1
80 m²
1
!!!VenduVous avez toujours rêvé d'un appartement neuf sans la contrainte de la TVA à 21 % ? Immexperts a trouvé la perle rare !
Sur les hauteur d'Andenne, dans un immeuble de 2025, cet appartement 2 chambres de 80 m², vendu sous régime des droits d'enregistrement (3% à qui peut y prétendre), se compose comme suit:
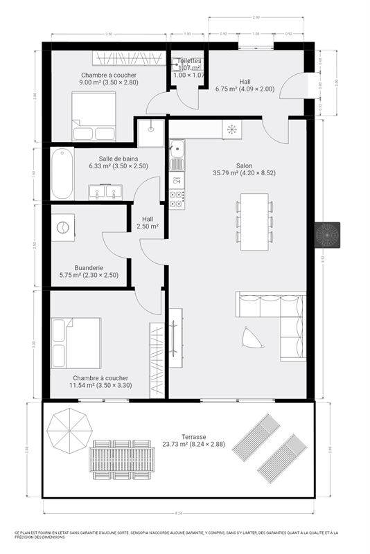
Au rez-de-chaussée: Hall d'entrée, WC, séjour avec cuisine (36 m²), hall de nuit, 2 chambres (9 et 11.5m²), buanderie, salle de bain (avec douche et baignoire).
Aux abords extérieurs: Terrasse (24m²) orientée Sud, emplacement de parking, garage (obligatoire 20.000 €).
Ce bien, outre sa localisation et son régime d'achat sous droits d'enregistrements, possède bien des avantages tels que la présence d'une pompe à chaleur, 6 panneaux photovoltaïques privatifs, châssis double vitrage PVC, électricité conforme, PEB A (20250724505128 - 6.204 kwh/an - 67 kWh/an.m²).
Prix de vente : Faire offre à partir de 219.500€ sous réserve de l'acceptation par les propriétaires.
Opportunité unique à ne pas manquer ! Contactez nous dès maintenant pour plus d’informations ou pour planifier une visite.
Informations & Visites au 085/84.41.91 - www.immexperts.be - bureau@immexperts.be.
Informations générales
AdresseRue de Perwez 34 / A, 5300 Andenne
EnvironnementCalme
Nombre d'étages1
Nombre de chambres2
Nombre de salles de bain1
Nombre de toilettes1
Nombre de garages1
Nombre de places de parking externes1
Surface habitable80 m²
Surface du living36 m²
DisponibilitéA l'acte
Orientation facade arrièreSud
Performance énergétique
Label PEB
Valeur PEB67 kWh/m²/an
PEB total6204 kWh/an
Certificat d'électricitéOui, conforme RGIE
Référence PEB20250724505128
Financier
PrixÀ partir de € 219.500
Droits d'enregistrement (3%)€ 6.585
Coûts totaux€ 9.337,52
Total€ 228.837,52
Confort
ChauffagePompe à chaleur
Cuisinehyper-équipée
VitrageDouble
Châssispvc
IntérieurBuanderie, Aménageable, Climatisation
ExtérieurTerrasse
DestinationHabitation
StyleModerne
Construction
Construction4 façades
Type de constructionTraditionnel
Année de construction2025
ÉtatNouvelle construction
ToitToit en mansarde
Matériau de toitureTuiles
État du toitEn parfait état
Attestation de solEn demande
Type d'amiantePas d'amiante trouvé
Informations urbanistiques
Droit de préemptionPas applicable
PermisOui
CitationPas applicable
Permis de lotissementPas applicable
AffectationZone d'habitat
Zone à risque d'inondationNon
Zone inondable délimitéeNon
Zone rivièreNon
Agencement
Hall d'entrée6.8 m²
WC1.0 m²
Chambre à coucher 19.0 m²
Living35.8 m²
Hall de nuit2.5 m²
Chambre à coucher 211.6 m²
Buanderie5.8 m²
Salle de bains 16.3 m²
Terrasse23.7 m²














